What Went into this Beautiful Langhorne Kitchen Remodel
Langhorne Kitchen Remodel - Complete Kitchen Renovation by Weiler’s Kitchen & Bath
Lauren Small
This client came to us with goals of making their kitchen larger, modern, and organized. They had found Weiler’s through online research and saw that we’ve been in the kitchen remodeling industry for over 50 years! After reading through our reviews they were excited about our streamlined process from design through installation. We make a full remodel as simple and efficient as possible.
The original kitchen was small, with a tiny island that was maybe four square feet and not designed for people to sit there. The clients had a wall to the right separating the kitchen from the dining room and complained that the dining room was only used during holidays, and even then their guests tended to congregate in their kitchen. On the left side of their kitchen there’s an exit to the backyard and a living room area, so the tiny kitchen was always a central traffic area. In addition to the limited space our clients were unhappy with their outdated cabinetry and appliances, which meant we would be doing a full refresh from floor to ceiling.
Design:
During the initial showroom consultation, with our designer Andi, these clients discussed their idea of removing the wall between the kitchen and dining room to use the entire space as their new kitchen, an idea she heavily agreed with. After discussing ideas and reviewing our process the clients decided to move forward and scheduled a $500 measure, during which Andi went to our client's home and surveyed their space to use for planning and layouts. There were the issues of how to get extra storage and how to accommodate the large window in their dining room in their new design in a way that would allow for as much natural lighting as possible and provide a great view into the client’s beautiful backyard. Andi proposed three different layouts, and the clients ultimately decided on a layout with a hidden pantry nook, which involved removing the wall between rooms and then building a wall that ended a bit before the window, that serves as the entry into the pantry while allowing natural light to enter both the kitchen and pantry. After selecting their layout, understanding the budget, and deciding to go with Weiler's for the full installation our clients paid a $2,000 deposit, this guarantees them a spot on our calendar for the remodel. Part of what made working with Weiler's so appealing was our simple, full-service process.
After the initial deposit all selections and costs are finalized, the client pays 50% of their final deposit, which was about $59,000 for this Langhorne kitchen renovation, and their materials are ordered, this is done 2-3 months before the remodel starts so there's enough time for everything to arrive and be stored in our warehouse below our showroom. Prior to the start date the project manager and designer go to the home to re-measure and confirm the design works. At this time, we cut small holes in any walls to ensure the walls can be removed and there is no utility within.

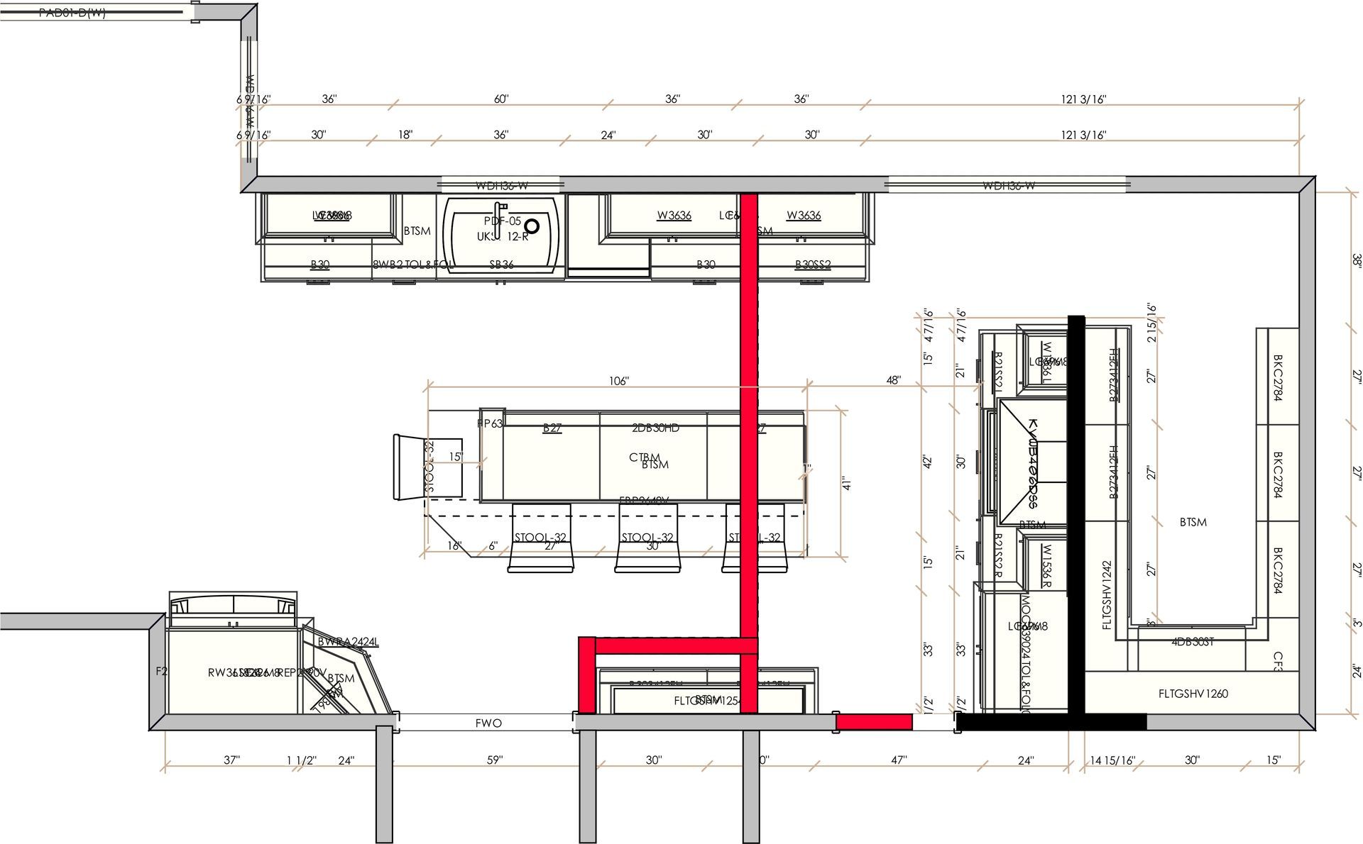
This layout shows the previous wall(s) that will be removed in red, and the new pantry wall in black
This layout shows the electrical plan for the kitchen
Timeline:
Week One
- Demolition: removal of existing cabinetry, appliances, and the wall between the kitchen and dining room.
- Rough electric
- Rough plumbing
Week Two
- Framing and drywall.
- Altering the doorway, and building another wall for the pantry
Week Three
- Cabinet installation
- Countertop Templated
Week Four
- Flooring installed
- Countertop installed
Week Five
- Final plumbing
- Backsplash installed
- Final electric
- Final molding on cabinets
The Materials:
Cabinets and Hardware
Perimeter is Wellborn MDF painted Glacier, door style is Galena Square
Island & Coffee Bar are Wellborn hickory stained Drift, door style is Galena Square
Pantry is Wellborn MDF painted Glacier, door style is Hancock
Hardware is Top Knobs, Ascendra pulls in Ash Gray
Final cost for cabinets and hardware: $42,753
Countertop
Granite countertop in the color Fantasy Brown
Edge profile is Eased
Final cost for countertop: $7,000
Construction:
Weiler’s is able to be efficient during installations because we procure all materials before the job starts, we use our own experienced install team, and our owner Pete is knowledgeable enough to personally manage every project. Before construction starts on a project, designers write a specification sheet that gets reviewed by our owner and the install team with instructions on every detail of demolition and installation to ensure everything goes to plan. In order to stick to our timelines, all materials are ordered well in advance of when we start the actual renovation and then stored in our warehouse beneath our showroom. This allows us to stick to our strict timeline and gives us necessary room in case materials come in damaged and need replacements, which happens on most projects. Typically, we take 3-4 weeks from start to finish of a remodel, but this Langhorne kitchen is larger and construction heavy so it ended up taking 5. The members of our install team pride themselves on cleanliness during construction; using drop cloths, plastic curtains, and air scrubbers on every site to minimize mess and disruptions in our client's homes.
Demolition and Carpentry
The first day or two of every project are demolition. In this kitchen the existing cabinets, countertop, sink, faucet, backsplash, lighting, and baseboards were removed, Weiler’s will remove and recycle the homeowner's original appliances. That pesky kitchen/dining room wall was the next thing removed, and the existing ductwork within was shifted to accommodate the new opening. After demo was complete, the team inspected the framing and flooring for any signs of water damage. Luckily no water damage was found, and the team was able to install new drywall and plywood to level the existing floor. A new wall was constructed to create an easily accessible walk-in pantry.
Electrical
All of the appliances were moved to new locations due to the drastic changes in layout, so new GFCI tamper resistant receptacles were installed per code for the new appliances including an induction cooktop, wall oven/microwave combo, dishwasher, and a recessed appliance receptacle for the refrigerator. Dedicated lines for all appliances were installed along with one for the hood over the range. The client opted to use concealed under cabinet outlets. Lighting was installed, including pendants, recessed lighting, and under cabinet LEDs.
Plumbing
This client’s kitchen sink remained in the existing location beneath their window, but they got a new sink, a Bocci Sotto Step Rim Undermount model in white. When updating plumbing fixtures, we always install new stop and waste ball valves and a new trap. The new faucet is a Delta Trinsic model in black stainless with a pull-out spray faucet to easily clean the large sink. The dishwasher was relocated to the right side of their sink for better workflow, and the necessary plumbing for that was installed.
Labor Cost
The total labor cost for this Langhorne kitchen project came out to almost $39,000; this includes demolition, carpentry, electric, plumbing, cabinetry, tile work, and flooring.
Final Reveal:
This Langhorne kitchen is The Real Deal, it turned out beautiful! It’s spacious, neat, and contemporary the way it uses more transitional cabinet styles but modern color themes. The before and after almost makes you think these images are from separate houses! The final cost for materials and labor came out to $117, 505, and our clients definitely got their money's worth. The kitchen doubled in size, creating space for island with 5 seats instead of zero, newly relocated appliances provide better function, and now there’s so much more space and storage for our clients to use. There’s better lighting as well, dimmable recessed lighting and under cabinet LEDs brighten the kitchen. The inclusion of the dining room’s window into this new design, leaving it unobstructed so both the pantry and kitchen could get sunlight was a brilliant move by their designer Andi. Another detail that was more subtle but still stood out to our clients was the outlet placement, instead of cutting into their backsplash we installed their outlets underneath their upper cabinets, so they were out of plain view but still easily accessible. When we went back after completion to take photos our clients had already filled their pantry and told us that they loved how open it was because then their kids and neighborhood friends could run in and out for snacks. Furthermore, the pantry serves as a place to store prepared foods during family occasions and does not crowd the island!
Why You Should Choose Weiler's:
Our goal with this Langhorne kitchen renovation, and with any other project we do at Weiler’s is to make the remodeling process as efficient as possible while still offering personalized service and fantastic quality. When we start construction on a project everyone at the company is either working on that project or communicating parts of it so there wasn’t a second where our clients felt uninformed or left out. You can see the difference in a Weiler’s kitchen through our work; meticulously installed cabinets and molding, neatly hidden plumbing and electric, and a finished space that's designed for our clients and not a showroom.
Inspired to remodel your own space? Schedule a showroom consultation with our designers to get started on your own kitchen remodel
through our website or at 215-357-9300.
















